Mehr Raum für Leben - Ihr Einfamilienhaus mit zwei Garagen in bester Lage von Burglengenfeld

Finanz Schuller GmbH
Birkenweg 6, 92542 Dieterskirchen
kontakt@finanz-schuller.de

Alexander Schuller

+49 176 84804951

Mehr Raum für Leben - Ihr Einfamilienhaus mit zwei Garagen in bester Lage von Burglengenfeld

Eckdaten

  • Art:Einfamilienhaus
  • Wohnfläche:159 qm
  • Kellerfläche:
  • Alt-/Neubau:1
  • Einbauküche:
  • Stellplatztyp:3
  • Vermietet:
  • Ausstattung des Bades:bathtub
  • Provision:3,57 %
  • Lage:93133 Burglengenfeld
  • Grundstück:350 qm
  • Baujahr:2026
  • Gäste-WC:1
  • Stellplatzanzahl:2
  • Bezugstermin:
  • Zustand:01
  • Kaufpreis:518.000 €
  • Zimmer:4
  • Etagenzahl:1
  • Heizungsart:WAE
  • Anzahl Balkone:
  • Garagenanzahl:
  • Bodenbelag:06
  • Immobilien-ID:2760

Immobilie

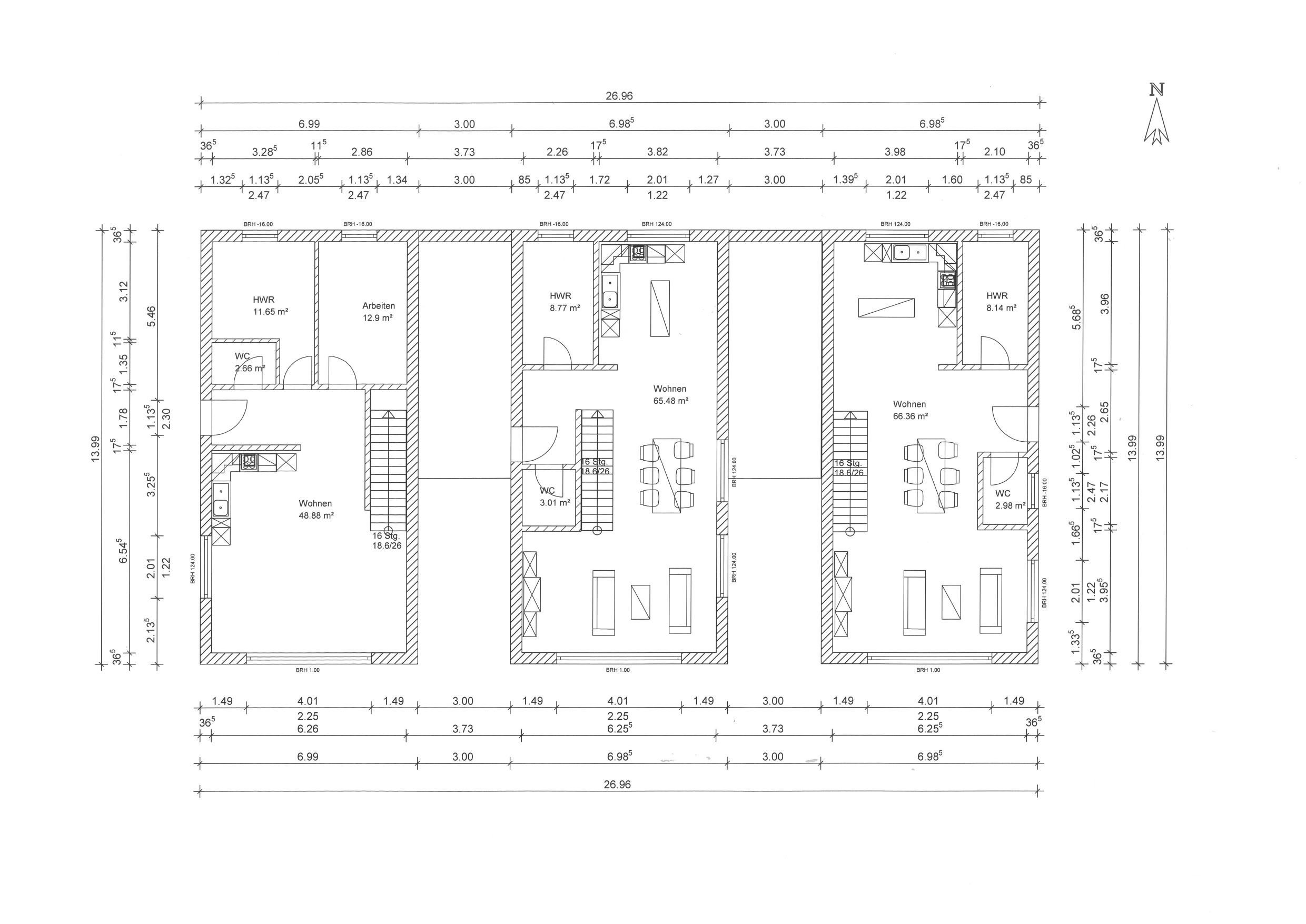
Dieses moderne Einfamilienhaus mit ca. 158m² Wohnfläche bietet ein komfortables Wohnambiente für Paare und Familien. Auf zwei Vollgeschossen gibt es insgesamt vier Zimmer. Die vielfältigen Nutzungsmöglichkeiten erlauben einen großzügigen Wohn-/Essbereich, ein lichtdurchflutetes Bad, ein großes Schlafzimmer mit Ankleide, 2 Kinderzimmer sowie einen klassischen Hauswirtschaftsraum. Der Dachboden ist ausbaufähig und bietet zusätzlichen Wohn-und Stauraum.

Das Grundstück ist hummusiert und bietet somit eine ideale Grundlage für Gartenanlagen.
Die Zuwegung und die Terrasse ist gepflastert.

Beheizt wird das Haus energieeffizient mit einer modernen Wärmepumpe, was niedrige Betriebskosten und einen zukunftssicheren Standard ermöglicht. Das Haus verfügt über eine Solaranlage zur Unterstützung der Warmwasseraufbereitung. Das Haus ist zusätzlich mit einer modernen Fußbodenheizung ausgestattet. Darüber hinaus sorgen Wärmedämmziegel für eine gute Isolation und ein angenehmes Wohngefühl zu jeder Jahreszeit.
Zur Immobilie gehören zwei gemauerten Garagen und ein Außenstellplatz.
Der Kaufpreis für die zwei gemauerten Garagen liegt bei 40.000€

Lage

Burglengenfeld mit seinen 13.000 Einwohnern liegt an der Naab zwischen Regensburg, Schwandorf und Amberg. Gemeinsam mit Maxhütte-Haidhof und Teublitz bildet die Stadt ein Mittelzentrum, das sogenannte Städtedreieck. Die kurze Entfernung von 5 km zur A93 macht Burglengenfeld zu einem attraktiven Wohnort für Pendler. Die Stadt bietet sämtliche Schularten sowie Betreuungseinrichtungen: Kindergärten, Grund-, Mittel- und Realschulen sowie ein Gymnasium sind in der Stadt vertreten. Der Ort verfügt über mehrere Turnhallen, Sportplätze, das Ganzjahresbad "Bulmare", Tennis- und Squashhalle, Kunstrasenplatz, Rad- und Wanderwege. Für die Freizeitgestaltung ist zusätzlich ein Starmexx Kino, das selbstverwaltete Jugendzentrum, ein DFB-Mini-Spielfeld sowie eine Skaterbahn vorhanden. Vor allem für Familien mit Kindern ist das ein großer Pluspunkt. Lebensmittel- und Bekleidungsgeschäfte sowie Restaurants sind sowohl in der Stadt selbst, als auch in der näheren Umgebung einfach zu erreichen. Für Ihre Gesundheit finden sich zahlreiche Ärzte, Fachärzte und ein Krankenhaus in Reichweite.

Ausstattung

Keller Einliegerwohnung vorhanden Seniorengerecht Barrierefrei Vermietet Gäste-WC Balkon vorhanden Terrasse vorhanden Sauna vorhanden Swimmingpool vorhanden Wintergarten vorhanden Einbauküche Rolladen vorhanden

Sonstiges

Um eine schnelle Bearbeitung gewährleisten zu können, bitten wir um vollständige Kontaktdaten.
(Telefonnummer)

Die Objektdaten beruhen sich auf die Angaben des Verkäufers, für die wir keine Haftung übernehmen.

Homepage:
www.immoschuller.de

Energieausweisangaben

A+
A
B
C
D
E
F
G
H
  • Energiekennwert
  • Energieeffizienzklasse
  • Energieausweis erstellt am
  • Heizungsart WAE
  • Befeuerung / Energieträger wa

Grundrisse