Zentrales Neubau Reiheneckhaus mit großzügigem Grundstück

Finanz Schuller GmbH
Birkenweg 6, 92542 Dieterskirchen
kontakt@finanz-schuller.de

Zentrales Neubau Reiheneckhaus mit großzügigem Grundstück

Eckdaten

  • Art:Reiheneckhaus
  • Wohnfläche:100 qm
  • Kellerfläche:
  • Alt-/Neubau:1
  • Einbauküche:
  • Stellplatztyp:3
  • Vermietet:
  • Ausstattung des Bades:bathtub
  • Provision:3,57 %
  • Lage:93133 Burglengenfeld
  • Grundstück:281 qm
  • Baujahr:2025
  • Gäste-WC:1
  • Stellplatzanzahl:1
  • Bezugstermin:2026
  • Zustand:01
  • Kaufpreis:529.900 €
  • Zimmer:5
  • Etagenzahl:3
  • Heizungsart:WAE
  • Anzahl Balkone:
  • Garagenanzahl:
  • Bodenbelag:03
  • Immobilien-ID:2685

Immobilie

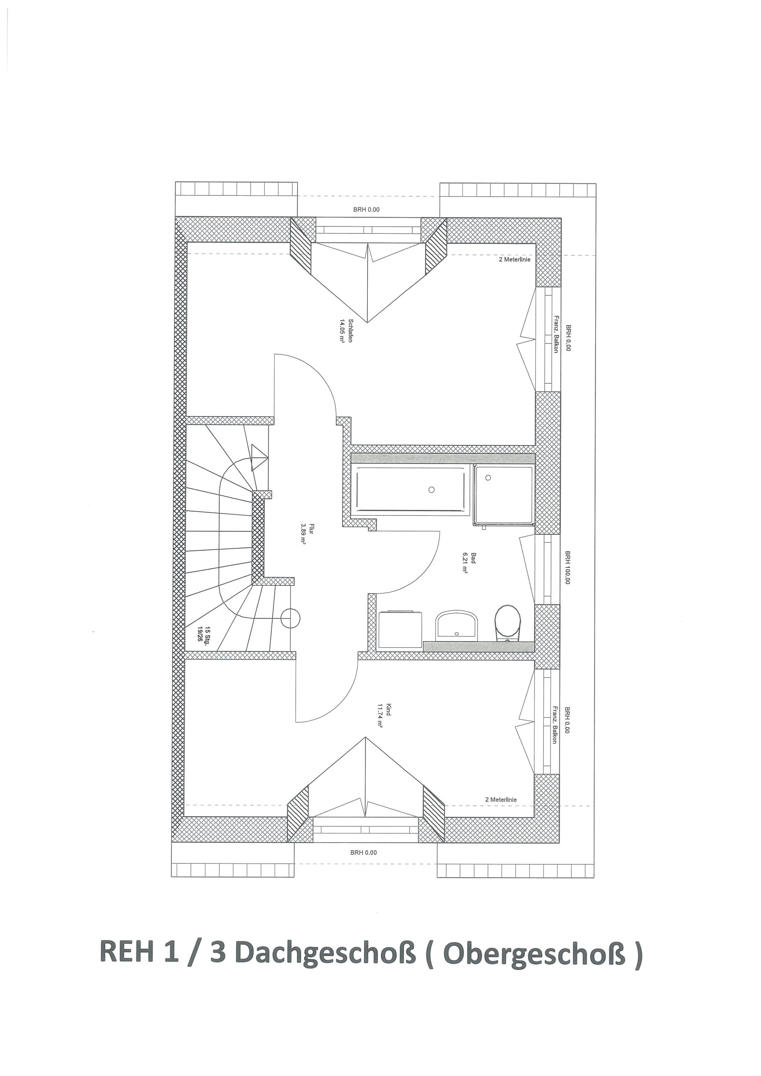
Dieses großzügige Reiheneckhaus mit ca. 100 m² Wohnfläche auf drei Ebenen steht auf einem ca. 281 m² großen Grundstück und bietet viel Raum für Familien und Gartenliebhaber. Fünf Zimmer, ein Studio im Dachgeschoss sowie hochwertige Materialien sorgen für ein komfortables Zuhause. Fußbodenheizung, Wärmepumpe und eine 5 kW Photovoltaikanlage garantieren ein energieeffizientes Wohnklima. Sichtdachstuhl, freitragende Holztreppe und hochwertige Betontreppe unterstreichen die Qualität. Das Grundstück ist voll erschlossen, inklusive Hausanschlüssen und Erdarbeiten. Dieses Haus vereint großzügigen Wohnraum mit moderner Technik in bester Lage.

Lage

Burglengenfeld mit seinen 13.000 Einwohnern liegt an der Naab zwischen Regensburg, Schwandorf und Amberg. Gemeinsam mit Maxhütte-Haidhof und Teublitz bildet die Stadt ein Mittelzentrum, das sogenannte Städtedreieck. Die kurze Entfernung von 5 km zur A93 macht Burglengenfeld zu einem attraktiven Wohnort für Pendler. Die Stadt bietet sämtliche Schularten sowie Betreuungseinrichtungen: Kindergärten, Grund-, Mittel- und Realschulen sowie ein Gymnasium sind in der Stadt vertreten. Der Ort verfügt über mehrere Turnhallen, Sportplätze, das Ganzjahresbad "Bulmare", Tennis- und Squashhalle, Kunstrasenplatz, Rad- und Wanderwege. Für die Freizeitgestaltung ist zusätzlich ein Starmexx Kino, das selbstverwaltete Jugendzentrum, ein DFB-Mini-Spielfeld sowie eine Skaterbahn vorhanden. Vor allem für Familien mit Kindern ist das ein großer Pluspunkt. Lebensmittel- und Bekleidungsgeschäfte sowie Restaurants sind sowohl in der Stadt selbst, als auch in der näheren Umgebung einfach zu erreichen. Für Ihre Gesundheit finden sich zahlreiche Ärzte, Fachärzte und ein Krankenhaus in Reichweite.

Ausstattung

Keller Einliegerwohnung vorhanden Seniorengerecht Barrierefrei Vermietet Gäste-WC Balkon vorhanden Terrasse vorhanden Sauna vorhanden Swimmingpool vorhanden Wintergarten vorhanden Einbauküche Rolladen vorhanden

Sonstiges

Um eine schnelle Bearbeitung gewährleisten zu können, bitten wir um vollständige Kontaktdaten.
(Telefonnummer)

Die Objektdaten beruhen sich auf den Angaben des Verkäufers, für die wir keine Haftung übernehmen.

Homepage:
www.immoschuller.de

Energieausweisangaben

A+
A
B
C
D
E
F
G
H
  • Energiekennwert
  • Energieeffizienzklasse
  • Energieausweis erstellt am
  • Heizungsart WAE
  • Befeuerung / Energieträger

Grundrisse