Neubau Doppelhaus-Bungalow
in Maxhütte-Haidhof

Attraktiver Neubau Doppelhaus-Bungalow in Maxhütte-Haidhof

Zwei tolle Doppelhaus-Bungalows werden in Maxhütte-Haidhof gebaut. Optimal geplante Grundrisse bieten ausreichend Platz für Sie und Ihre Familie.

Eine mögliche PV-Anlage kann bei Bedarf nachhaltige Energie erzeugen. Die Terrasse lädt zum Entspannen ein und bietet zahlreiche Gestaltungsmöglichkeiten. Ein idealer Ort für komfortables und modernes Wohnen.

2025 wird mit dem Bau begonnen. Lassen Sie sich jetzt vormerken und sichern Sie sich Ihr Haus!

Über Maxhütte-Haidhof

Maxhütte-Haidhof ist ca. 25 km von Regensburg entfernt und liegt nur knapp 3 km von der nächsten Autobahnzufahrt entfernt. Zudem erreichen Sie auch den Bahnhof in wenigen Minuten. Die Stadt mit ihren 10.000 Einwohnern bietet einem außer der guten Infrastruktur noch einiges mehr: Lebensmittel- und Bekleidungsgeschäfte befinden sich in Ihrer unmittelbaren Nähe, ebenso Grund- und Hauptschule. Es finden sich hier auch verschiedene Kindergärten sowie Kindergrippen, so sind die Kleinsten auch gut untergebracht. Ein vielfältiges Freizeitangebot ist über diverse Vereine, das Wohlfühlbad Bulmare oder einem Kinocenter in der Umgebung gegeben. Für Ihre Gesundheit finden sich zahlreiche Ärzte, Fachärzte und ein Krankenhaus in Reichweite.

Übersicht – Maxhütte-Haidhof

  • Baubeginn: 04/2025
  • Grundstücksfläche: ca. 275 m²
  • Wohnfläche pro DHH: ca. 84 m²
  • Dezentrale Lüftungsanlage
  • Wärmepumpe
  • Carport + Einfahrt gepflastert
  • je Einheit ist eine Garage möglich, nach individueller Absprache
  • Gehweg zum Hauseingang gepflastert
  • KFW 40 Standard
  • Komplett schlüsselfertig – Einzugsbereit inkl. aller Innenausbauten.
  • Bezugsfertig: Ende August
  • Kaufpreis: auf Anfrage

Objektbeschreibung

Ein toller Neubau Doppelhaus-Bungalow wartet auf Sie!

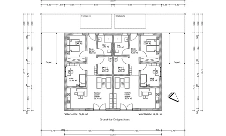
Die ca. 84 m² Wohnfläche sowie die 275 m² Grundstücksfläche bieten ausreichend Platz für Sie und Ihre Familie.

Dieser moderne Doppelhaushälfte-Bungalow besticht durch eine individuelle Raumaufteilung. Er bietet ein großzügiges Wohnzimmer, eine offene Küche mit Essbereich, ein Schlafzimmer, ein stilvolles Badezimmer und ein Kinderzimmer.

Der Bungalow ist mit Kunststofffenstern 3-fach verglast und mit hochwertigen Fliesen im Badezimmer und in den Schlafzimmern mit Vinylboden ausgestattet.

Eine mögliche PV-Anlage kann bei Bedarf nachhaltige Energie erzeugen. Die Terrasse lädt zum Entspannen ein und bietet zahlreiche
Gestaltungsmöglichkeiten. Ein idealer Ort für komfortables und modernes Wohnen.

Gerne vereinbaren wir einen Besprechungstermin mit Ihnen.

Ausstattung

  • Schlafzimmer: 2
  • Aluminiumhaustüre
  • Kunststofffenster 3 fach verglast
  • Spülrandloses WC
  • Terrasse mit Verlegeplatten
  • Fenster sowie die Haustüre werden in der Farbe anthrazit eingebaut